Ein Haus für sich allein
Beim Thema Hausbau denkt man typischerweise an die Realisierung eines Familien-Domizils. Dabei können sich auch Singles und Paare den Traum von den eigenen vier Wänden erfüllen! Worauf dabei zu achten ist, lest ihr hier.
Texte: Christine Meier
Alleine bauen? – Warum nicht!
Der Wunsch, sich ein eigenes Haus zu bauen, hat nicht zwangsläufig etwas mit dem Familienstand zu tun. Auch als Single oder zu zweit kann die Sehnsucht nach einem Eigenheim bestehen: das Bedürfnis nach mehr Freiraum, ein eigenes Zuhause ganz nach persönlichen Ansprüchen, Bedürfnissen und Geschmack gestalten zu können sowie der Wunsch, sein Geld nachhaltig in einer Immobilie anzulegen anstatt teure Miete zu zahlen. Ein eigenes Haus – und sei es noch so klein – bietet oft mehr Privatsphäre als eine Miets- oder Eigentumswohnung in einem Mehrfamilienhaus. Vor allem mit Blick in die Zukunft: Denn bei stetig steigenden Mietpreisen ist die Aussicht, im Alter mietfrei im Eigenheim zu wohnen, eine beruhigende Perspektive.
Auch für ältere Paare, bei denen die Kinder bereits ausgezogen sind, kann es attraktiv sein, sich räumlich noch einmal neu aufzustellen – auf das Nötige konzentriert und entsprechend reduziert. Denn warum soll man weiter viele große Räume am Laufen halten, wenn man sich einen neuen Lebensraum schaffen kann, der viel mehr den ganz persönlichen Ansprüchen und der eigenen Entfaltung entspricht? Eine kleinere Immobilie mit geringerer Grundfläche kann nämlich auch Entlastung im Alltag bedeuten, weniger Arbeit für den Unterhalt des Gebäudes und geringere Energiekosten.
Wie viel Platz braucht man als Single oder Paar?
Als Paar oder Single braucht man in der Regel weniger Platz als eine Familie. Selbst, wenn man Raum für Hobbies einplant, ist der Platzbedarf meist geringer als bei einer fünfköpfigen Familie. Mini- oder Modulhäuser eignen sich für für einen Ein- oder Zweipersonenhaushalt eher als für Familien und sie sind relativ erschwinglich und können damit für manche eine gute Alternative zur Miet- oder Eigentumswohnung in der Stadt sein.

Tiny-, Mini- oder Einfamilienhaus
Da der Anteil an Ein- und Zweipersonenhaushalten kontinuierlich steigt, werden sogenannte Minihäuser immer beliebter. Je nach persönlichen Wohnansprüchen kann ein Singlehaus gut in Form eines Mini-Hauses oder als Tiny-Haus realisiert werden: Wer Downsizing und Minimalismus als Ausdruck eines Lebensstils versteht, weil Nachhaltigkeit und überlegtes Konsumverhalten für ihn eine große Rolle spielen zum Beispiel oder auch als Alternative zur ersten gemeinsamen Wohnung, kann ein Tiny-Haus passend sein: ein kleiner, naturnaher Rückzugsraum, nur für sich, der zwangsläufig eine Besinnung auf das Wesentliche mit sich bringt.

Foto: RossHelen/www.elements.envato.com
Auch einige Fertighaus-Anbieter bieten eine Auswahl an Entwürfen für Mini- und Tiny-Häuser. Diese kleinen Häuser und Wohnmodule bieten hohen Wohnkomfort, sind durchdacht geplant und hochwertig umgesetzt und ausgestattet. Wenn gewollt sogar mit neuester Smarthome Technik ausgestattet. Außerdem können modulare Tiny-Häuser je nach Lebensplanung später auch aufgestockt und erweitert werden.
Die Begriffe Tiny- und Mini-Haus sind nicht fest definiert. Man unterscheidet in etwa wie folgt: fest installierte Tiny- und Modulhäuser haben eine Größe von circa 50 Quadratmetern, Mini-Häuser von bis zu 100 Quadratmetern. Ein Mini-, Modul- oder Tiny-Haus zu kaufen, ist als Bauvorhaben beinah ebenso komplex wie jedes andere Wohnhaus in Deutschland. Außerdem ist es in Deutschland nicht ganz so leicht, sich den Traum vom idyllischen Tiny-Haus-Leben zu erfüllen: Sobald ein Mini- oder Tiny-Haus als Hauptwohnsitz dient, muss auch hier immer ein Bauantrag gestellt werden. Bevor es aber an die Planung und den Bau geht, sollte man sich sicher sein, dass ein Leben im Tiny-Haus auch zu den eigenen Wünschen und Bedürfnissen passt.
Hier ein Überblick:
| Tiny-Haus auf Rädern | Tiny-Haus auf Fundament | Mini-Haus | Mini-Bungalow |
|---|---|---|---|
|
Wohnfläche
< 26 m² |
Wohnfläche
< 50 m² |
Wohnfläche
< 100 m² |
Wohnfläche
< 100 m² |
|
Bauart / Beschreibung
Haus auf Rädern, max. 2,55 m x 7 m und 4 m hoch |
Bauart / Beschreibung
Fest installiertes Kleinsthaus mit ein bis zwei Ebenen |
Bauart / Beschreibung
Fest installiertes, vollwertiges kleines Haus mit ein bis zwei Ebenen |
Bauart / Beschreibung
Vollwertiges, ebenerdiges und barrierearmes kleines Haus |
Vorteile (Pro)
|
Vorteile (Pro)
|
Vorteile (Pro)
|
Vorteile (Pro)
|
Nachteile (Contra)
|
Nachteile (Contra)
|
Nachteile (Contra)
|
Nachteile (Contra)
|
|
Geeignet für
minimalistisch orientierte Singles und Paare |
Geeignet für
minimalistisch orientierte Singles und Paare |
Geeignet für
Singles, Paare und Kleinfamilien |
Geeignet für
Singles, Paare und Kleinfamilien |
Es gibt aber natürlich auch Singles, die aus unterschiedlichen Gründen größer bauen: Beispielsweise, weil sie gerne und oft Gäste haben, Kinder, die zum Teil bei ihnen wohnen oder oft zu Besuch kommen oder weil sie zu Hause arbeiten, Platz für ihre Hobbies vorsehen oder sich offen lassen möchten, irgendwann mit jemandem zusammen in dem Haus zu leben. Aber nicht bei jeder Single-Haus-Planung steht allein der reine Wohnflächenbedarf im Fokus: Die Realisierung individueller Wohnwünsche ist auch bei Singles und Paaren ein wichtiger Faktor. Je nach persönlichen Ansprüchen und finanziellen Mitteln kann euer Haus, ob alleine oder für zwei, ein sehr kleines, also ein Tiny- oder Mini-Haus sein oder genauso gut auch eine luxuriöse Villa in Frage kommen.
Ihr könnt also selbstverständlich auch in einem Einfamilienhaus mit 120 und mehr Quadratmetern als alleinstehende Person oder zu zweit hervorragend leben. Dieses Haus bietet die größte Flexibilität, falls sich eure Lebenssituation doch noch maßgeblich ändert. Hier sollte bei der Planung auf eine möglichst flexible Grundrissplanung geachtet werden – d.h. euer Haus sollte nicht allzu individuell in der Raumaufteilung sein, über etwa gleich große Räume für flexible Nutzung verfügen und eventuell zwei (Dusch-)Bäder haben. Die Entscheidung über die Größe ist also sehr individuell.
Der optimale Grundriss
Den einen perfekten Grundriss gibt es im Grunde nicht: nicht beim Single-, Paar- und auch nicht beim Einfamilienhaus. Denn optimal ist eine Raumplanung immer dann, wenn sie den Bedürfnissen und Ansprüchen der jeweiligen Bewohner entspricht – und die sind nicht allgemein gültig, sondern sehr individuell.
Als Paar oder Single kann man seinen Grundriss grundsätzlich etwas freier planen als mit Familie. Da es weniger Familienmitglieder und entsprechend weniger Bedürfnisse gibt, die unter einen Hut gebracht werden müssen. Der Traum vom offenen Loft-Grundriss ohne trennende Wände kann hier also eher verwirklicht werden. Doch selbst im Singlehaus ist etwas Privatsphäre empfehlenswert. Wenn ihr Gäste bekommt, möchtet ihr sicher nicht direkt freien Blick auf den Schlafbereich oder das private Bad geben. Der ideale Grundriss besteht daher – wie auch der eines Einfamilienhauses – aus einem eher privaten und einem öffentlicheren Gemeinschaftsbereich.

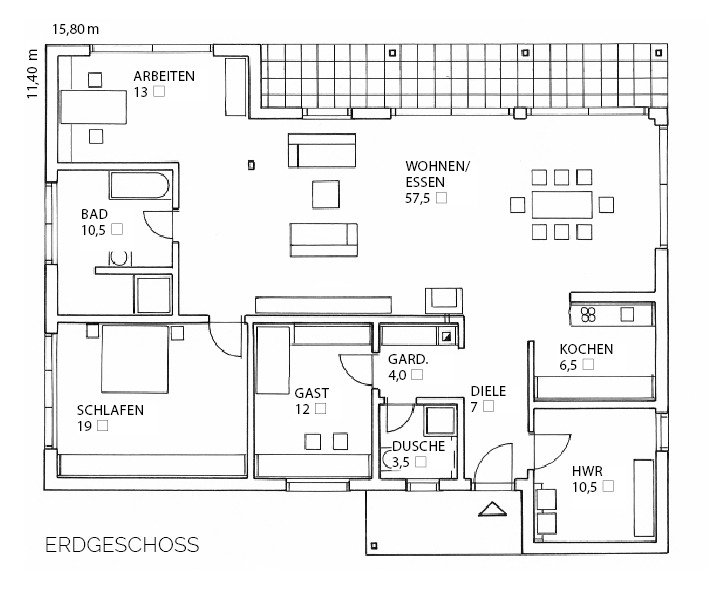
Wenn es euer Grundstück und der Bebauungsplan zulassen, können in einem Bungalow alle fürs tägliche Leben notwendigen Räume auf einer Ebene untergebracht werden. Dieser Beispielgrundriss zeigt, wie gut zoniert sogar noch ein Gäste-zimmer, Arbeits- und Hobbyecke neben einem geräumigen Wohn-Essraum Platz finden.
Auch wenn ihr Küche, Ess- und Wohnzimmer komplett offen gestaltet, ist es durchaus ratsam, daneben einen durch Wände getrennten privaten Trakt aus Schlafen, Ankleide und Bad zu planen. Obligatorisch sind Garderobe, Technik- und Abstellraum. Ein Zusatzzimmer ist als Arbeits- und Gästezimmer immer sinnvoll. Ein separates Gäste-WC, gegebenenfalls mit Dusche, rundet die Raumaufteilung für euer Single- und Paarhaus ab.
Ihr könnt aber auch überlegen, ob – wenn ihr als Paar euer neues Zuhause plant – jeder von euch ein eigenes (Arbeits-)Zimmer fürs Home-Office oder als zusätzlichen Rückzugsbereich einrichten möchte. Außerdem könnt ihr natürlich Hobby-, Wellness- oder Fitnessräume einrichten, je nach Budget und Platz, und ihr solltet – wie bei jeder Grundrissplanung – überlegen, wie viel Staufläche ihr braucht: Das hängt von euren Hobbies und Vorlieben ab, ob ihr ein Haustier habt, eher minimalistisch lebt oder gerne vieles aufbewahrt.

Planungs-Tipps
Zwar ist es kein Muss, doch als Single oder Paar kann man durch eine geringere Hausgröße sparen. Zum einen in der späteren Nutzungsphase Energie, und zum anderen kann es gerade aufgrund des aktuellen Wohnungs- und Immobilienmarkts mit stetig steigenden Preisen für Bauland und Wohneigentum durchaus ein Vorteil sein, auf kleinerer Fläche zu bauen, um sich den Traum vom eigenen Haus überhaupt erfüllen zu können.
Damit man trotzdem das Beste aus der vorhandenen Fläche rausholt, ist ein cleveres Grundrisskonzept umso wichtiger. Hier ein paar Tipps:
- Nicht zu klein und sparsam planen: Die Größe der einzelnen Räume hängt von eurem individuellen Bedarf ab, sollte aber immer auch ein bisschen Flexibilität bieten – falls sich die Bedürfnisse später ändern oder jemand mit einziehen soll, Nachwuchs dazu kommt etc.
- Offener Grundriss: Gerade in kleineren Häusern wirken zum Beispiel offene Wohn-Ess-Kochbereiche ohne trennende Innenwände weitläufiger und geräumiger.
- Große Fenster: Wo es möglich ist, verbinden bodentiefe Fenster die Innenräume mit der Umgebung und sorgen so ebenfalls für Licht und Weite – kleinere Zimmer wirken größer.
- Clevere Stauflächen: Wo Ordnung ist, ist optische Ruhe und Räume bieten mehr Platz und Bewegungsfläche – gut geplante Einbauten können z.B. Stauraum schaffen.
Zusammen – jeder für sich
Wer sich ein größeres Haus leisten kann, für den kann das Vorsehen einer zweiten Wohneinheit sinnvoll sein: Eine davon kann vermietet werden und durch Mieteinnahmen und gegebenenfalls – bei sehr energieeffizienten Häusern – Fördermittel die Finanzierung erleichtern. Insofern kann es auch eine gute Variante sein, sich mit jemandem zusammen zu tun, seien es die Eltern, Freunde oder andere Familienmitglieder, und gemeinsam, mit zwei Wohneinheiten zu bauen.
Wie ihr euch auch entscheidet: Wichtig ist, dass euer Single- oder Paarhaus langfristig zu euch und euren Wohnwünschen passt. Darum sollte es flexibel nutzbar bleiben, zwar kompakt, aber auch nicht allzu klein und speziell geplant sein – auch, um den Wiederverkaufswert nicht zu schmälern. Ein fachlich kompetenter Baupartner, der wie es viele Fertighausanbieter tun, von der ersten Planung, über die Finanzierung bis zur schlüsselfertigen Bauabnahme einen umfassenden Service bietet, kann ideal sein.







