Baukosten unter Kontrolle
Sein Traumhaus zu bauen ist toll – wäre da nicht die Sache mit dem lieben Geld! Marlen und Matthias hatten genau berechnet, wie viel sie für ihr neues Haus ausgeben konnten. Bei der Planung wägten sie ganz genau ab, was sie sich leisten wollten und konnten – und geben ihre Erfahrungen heute sehr offen auf Instagram weiter.
- Der Traum: ein ganz normales Haus
- Die bezahlbare Lösung: ein Aktionshaus
- Konzentration auf das Wesentliche
- Bauen in Hanglage: Keller, ja oder nein?
- Innenausbau: sparen durch Eigenleistung
- Energie sparen und selbst erzeugen
- Obergeschoss: mehr Kniestock, mehr Platz
- Highlight: das Wellnessbad
- Das Fazit der Bauherren
Bauen ist teuer geworden. Dazu tragen nicht nur die schon seit vielen Jahren hohen Grundstückspreise bei, auch Baustoffe, Handwerkslöhne und vor allem die Finanzierungskosten sind in den letzten Jahren deutlich gestiegen. Als Ergebnis dieser Entwicklung ist heute an vielen Stellen zu lesen, dass sich Durchschnittsverdiener kaum noch ein Eigenheim leisten können. Und tatsächlich haben sich die Bauantragszahlen in den letzten Jahren mehr als halbiert.
Dass es trotzdem klappen kann, zeigen Marlen und Matthias. Das junge Paar hat sich auf der Schwäbischen Alb ihr persönliches Traumhaus gebaut. Ursprünglich wollten sie einen Altbau kaufen und umbauen – das stellte sich aber schnell als unbezahlbar heraus. Als sie die Chance bekamen, in Marlens Heimatdorf ein Baugrundstück zu kaufen, griffen sie zu.

Der Traum: ein ganz normales Haus
An die Planung ihres Hauses gingen die beiden sehr strukturiert heran. Zunächst kümmerten sie sich um ihr Baubudget. 290.000 Euro Eigenkapital hatten die Mittdreißiger bereits angespart. Für die noch fehlende Summe von 460.000 Euro ließen sich unterschiedliche Finanzierungs-angebote machen. Heute zahlen sie eine monatliche Rate von 1.500 Euro für Zinsen und Tilgung an die Bank.
Um zu ergründen, was sie für ihr Geld bekommen würden, fuhren Marlen und Matthias nach Günzburg, um in der dortigen Musterhaus-Ausstellung eine persönliche Fertighaus-Marktanalyse zu machen. Was sie wollten, war ihnen zu diesem Zeitpunkt schon weitestgehend klar: ein klassisches Einfamilienhaus mit Satteldach sollte es werden, mit viel Holz, natürlichen Farbtönen und einer ruhigen, harmonischen Ausstrahlung.
Wie alle Bauherren, versuchten sich Marlen und Matthias zunächst an eine ganz individuelle Planung. Sie wussten sehr genau, was sie wollten und hatten beim Bau ihrer bisherigen Eigentumswohnung bereits erste Planungserfahrung gesammelt. Nachdem eine geplante KfW-Förderung wegfiel, stellte sich aber schnell heraus, dass diese individuelle Plan am Geld scheitern würde: Es war schlichtweg zu teuer.
Die bezahlbare Lösung: ein Aktionshaus

Der Retter in dieser Not hieß Alexander Grupp und ist Bauberater beim schwäbischen Fertighausspezialisten Schwörer Haus. Für diesen Hausanbieter hatten Marlen und Mattias sich entschieden, „weil hier die Chemie stimmte.“ Dazu gehörte für die beiden nicht nur, dass sie sich mit ihren Wünschen ernst genommen fühlten, sondern das Gesamtpaket aus regionaler Verwurzelung, gutem Ruf und der Möglichkeit, Haus und Keller aus einer Hand zu bekommen.
Alexander Grupp empfahl dem jungen Paar ein Aktionshaus. Bei diesen handelt es sich um vorgeplante Häuser, die von den Schwörer-Experten auf ein optimales Preis-Leistungs-Verhältnis getrimmt wurden. Wer von den Kostenvorteilen profitieren möchte, muss allerdings auf 100 Prozent Planungsfreiheit verzichten: Der Grundriss ist weitestgehend vorgegeben.
Konzentration auf das Wesentliche
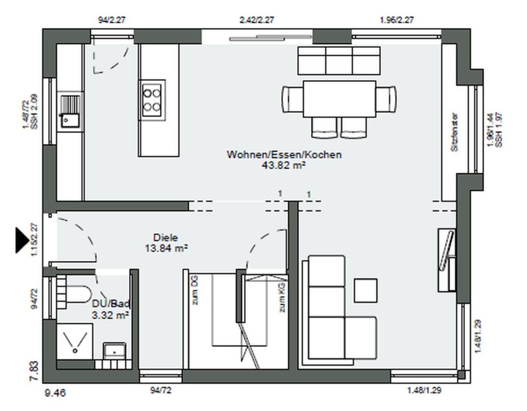
Bei näherer Beschäftigung mit den Grundriss des Aktionshauses stellten Marlen und Matthias fest, dass es viele ihrer Wohnwünsche bereits berücksichtigte: mit rund 110 Quadratmetern Wohnfläche auf zwei Geschossen hatte es genau die passende Größe für das Paar, seine zwei Katzen und ihren großen Hund.
Trotzdem nahmen sie auch Änderungen vor: Die genaue Platzierung der Fenster wurde an die Gegebenheiten auf dem Grundstück und die Wünsche des Baupaares angepasst. Bodentiefe Fenster prägen den Essbereich mit offen anschließender Küche. Um Kosten zu sparen, ließen sie unter anderem das große Fenster am Essplatz und das über der Arbeitsfläche in der Küche als Festverglasung ausführen. Dafür gibt es eine Fenstertür für den direkten Weg von der Küche in den Garten und auch eine große Hebe-Schiebe-Tür, die den Essplatz zur Terrasse öffnet. Aufgrund der Hanglage des Grundstücks musste auch der Hauseingang auf die Giebelseite des Hauses verlegt werden.
Für eine großzügigere Raumwirkung öffneten sie außerdem die Eingangsdiele großzügig Richtung Küche und Essbereich. Dank der prima gedämmten und abgedichteten Haustür treten auch ohne abgeschlossenem Windfang keine Zugerscheinungen auf.

Bauen in Hanglage: Keller, ja oder nein?
Apropos Hanglage: Das leicht nach Norden abfallende 557 Quadratmeter große Grundstück stellte die Bauherren vor eine weitere knifflige Entscheidung, nämlich ob sie sich einen Keller leisten wollen. Eigentlich wollten Marlen und Matthias ihr Haus auf einer Bodenplatte erstellen. Dafür hätten sie aber das Hanggrundstück aufschütten müssen, um eine ebene Fläche für ihren Hausbau zu erhalten. Erste Recherchen zeigten: Erdarbeiten sind richtig teuer. Deswegen verglichen sie die Bodenplattenvariante auch mit der Kelleralternative.

Zunächst erschienen die Mehrkosten für den Keller minimal. Nach einem Baugrundgutachten stellte sich allerdings heraus, dass ihr Keller aus Wasserundurchlässigem Beton gebaut werden musste. Das ließ die Kosten natürlich wieder steigen. Obwohl sie letztendlich für ihr Haus mit Keller mehr ausgaben, als die Variante mit Bodenplatte gekostet hätte, sind sich Marlen und Matthias einig, dass der Keller langfristig die richtige Entscheidung war. Nicht zuletzt deswegen, weil sie sich im Erdgeschoss keinen Platz für die Haustechnik absparen mussten. Die ist heute im Untergeschoss untergebracht und der Wohnbereich profitiert von dem Mehr an Platz deutlich. Außerdem bietet ihnen der Keller den im Alltag immer nötigen Abstellraum. Einzig der Verzicht auf eine Außentür vom Garten in den Keller – den sie sich damals aus Kostengründen gespart hatten – schmerzt die beiden heute. Ob Gartengerät oder Fahrräder: Alles muss heute durch den Eingangsbereich des Hauses in oder aus dem Keller transportiert werden.
Innenausbau: sparen durch Eigenleistung
Wie bei der Gestaltung ihrer Hausfassade, der Terrasse und dem Carport legten Marlen und Mattias auch im Hausinneren Wert auf viel Holz und ein einladendes Ambiente. Ein ganz wichtiger Ausstattungswunsch der beiden war echtes Eichenparkett in allen Wohnräumen. Weil das im Ausstattungsstandard des Aktionshauses nicht inbegriffen war, entschieden sich die engagierten Bauherren, dieses selbst zu verlegen. Matthias ist gelernter Schreiner und handwerklich geschickt. Rund 14.000 Euro konnten die beiden dadurch sparen.

Neben dem Holzboden baute er mithilfe von Marlen auch alle Türen im Haus selbst ein. Auch der Kellerausbau erfolgte in Eigenleistung, ebenso wie die Installation alle Deckenspots im Haus mithilfe von Marlens Vater, seines Zeichens Elektriker. Circa 10.000 Euro günstiger wurde der Carport, weil Matthias selbst den Zimmermann beim Bau unterstützte.

Herzstück des Hauses ist der offene Wohn-Essbereich mit offener Küche und Panorama-Erker mit Sitzfenster. „Das haben wir in einem Musterhaus gesehen und wollten es unbedingt auch haben“, erinnert sich Marlen. Küche und Essplatz orientieren sich nach Süden und öffnen sich mit großen Fenstern zur großen Holzterrasse, die das Baupaar hier angeschlossen hat.
Die Küchenplanung fiel Marlen und Matthias leicht. Sie hatten erst vor ein paar Jahren eine Küche für ihre Eigentumswohnung geplant und konnten viele Details, die sich dort im Alltag bewährt hatten, bei der Küche im neuen Haus eins zu eins übernehmen. So entstand die Kombination aus einer Halbinsel mit Kochfeld und viel Arbeitsfläche und einem Hochschrank der eine „Arbeitsnische“ mit Spülbecken und darüberliegendem Fenster ausbildet. Die schwarzen Fronten kombinierte das Baupaar mit Arbeitsplatten und Wandverkleidungen in Eichenoptik – passend zum Fußboden.


Rechts vom Essplatz, dort, wo im ursprünglichen Grundriss eigentlich die Haustechnik untergebracht worden wäre, befindet sich heute das Wohnzimmer. Zwei übereck angeordnete Fenster sorgen hier für viel Tageslicht und einen großzügigeren Raumeindruck. Im Nachhinein hätte sich Marlen anstelle der zwei festverglasten Fenster hier zumindest eines mit Öffnungsflügel gewünscht, um im Alltag auch mal ordentlich Querlüften zu können.


Energie sparen und selbst erzeugen
Dabei muss die Hausbesitzerin sich eigentlich gar nicht selbst um das, für ein gesundes Raumklima nötige Lüften kümmern. Denn ihr Effizienzhaus 55 EE verfügt über eine automatische Lüftungsanlage mit Wärmerückgewinnung, die zuverlässig und fast ohne Lüftungswärmeverluste für stets frische und saubere Luft im Hausinneren sorgt. Zusammen mit der Luft-Wasser-Wärmepumpe sorgt sie im hervorragend gedämmten Haus für dauerhaft niedrige Heizkosten. Die große Photovoltaik-Anlage auf dem 30 Grad geneigten Satteldach erzeugt einen Großteil des für ihren Betrieb nötigen Stroms. Überschüsse speichern Marlen und Matthias in einer Hausbatterie im Keller.
Obergeschoss: mehr Kniestock, mehr Platz
Im Dachgeschoss befinden sich neben dem Schlafzimmer von Marlen und Matthias zwei weitere Zimmer, die sie momentan als Ankleide und Arbeits- beziehungsweise Gästezimmer nutzen, und ihr Bad.
Um mehr Flexibilität für Nutzung und die Einrichtung der Räume unter dem 30 Grad geneigten Satteldach zu bekommen, entschied sich das Paar, den Kniestock von ursprünglich 165 Zentimetern auf 185 Zentimeter zu erhöhen und somit ein zweites Vollgeschoss zu erhalten. Die Mehrkosten für die Kniestockerhöhung glichen sie mit einer Gutschrift vom Haushersteller aus, die sich durch eine Verringerung des Dachüberstands ergab. Missen wollen sie das entstandene Plus an Wohnqualität heute nicht mehr.

Highlight: das Wellnessbad
Das Highlight im Obergeschoss ist das große Badezimmer mit großer frei stehender Badewanne und Walk-in-Dusche. Mit viel Engagement und Fingerspitzengefühl haben Marlen und Matthias diesen Raum zu einer echten Wellnessoase gemacht. Der feuchteresistente Holzboden sorgt für die natürliche Optik und Haptik. Das Blättermuster der Wandfliesen wiederholt sich in den Zimmerpflanzen. „Wir wollten dieses Spa-Gefühl zu Hause“, so Marlen. „Und die runde Form der Wanne wirkt einfach harmonisch.“
Der Einbau dieser beeindruckenden Badewanne bewerkstelligten die beiden ebenfalls in Eigenleistung. Die schwere und große Wanne über das Treppenhaus ins Badezimmer zu tragen, war ein echtes Abenteuer. Und beide freuen sich, dass auch die kniffligen Anschlussarbeiten von Wannenarmatur und -abfluss zu einem dauerhaft dichten Ergebnis geführt haben.
Einzig bei der Dusche würde das Baupaar heute großzügiger planen: Die 1,2 Meter tiefe Duschfläche ist nicht tief genug, um ohne Spritzschutz duschen zu können. Vorübergehend behelfen sich Marlen und Matthias mit einem Duschvorhang. Perspektivisch wollen sie diesen durch eine Glastür ersetzen.


Für Ruhe vom Alltag sollte das Schlafzimmer möglichst ruhig und harmonisch gestaltet werden. Marlen wählte für die Wand am Kopfende des Bettes einen sanften Grünton, ansonsten prägen vor allem Naturmaterialien und viel Holz den Raum. Weil das Nebenzimmer als Ankleide dient, befinden sich im Schlafzimmer selbst nur zwei kleine Schränke mit Türen in Flechtoptik und den für die gesamte Einrichtung typischen schwarzen Metallakzenten.

Seit gut einem Jahr wohnen Marlen und Matthias jetzt in ihrem neuen Haus. Ihr Fazit: Der Hausbau hat gut geklappt, es war eine schöne, aber auch sehr herausfordernde Zeit. Ihre Jobs und den Hausbau mit viel Eigenleistung unter einen Hut zu bekommen, war nicht immer leicht. Umso stolzer sind sie auf das, was sie geleistet haben, und sehr zufrieden, nun angekommen zu sein. Es gibt zwar immer noch Details, die auf ihre Vollendung warten – wie zum Beispiel das Vordach am Eingang, aber das meiste ist geschafft.
Das Fazit der Bauherren
Viel Bestätigung für ihr Projekt bekommen die beiden nicht nur von Familie und Freunden, sondern auch auf Social Media. Denn Marlen hatte sich schon während des Hausbaus entschlossen, ihre Erfahrungen beim Hausbau und vor allem zum Thema Baukosten mit anderen Bauinteressenten zu teilen und postet regelmäßig auf ihrem Instakanal, worauf Bauinteressenten achten sollten. „Es geht um Transparenz“, sagt sie. „Über Kosten, Baunebenkosten, Entscheidungen. Man baut meist nur einmal – da kann man selten auf eigene Erfahrungswerte zurückgreifen.“ Gerade über den Kostenaspekt hat das Paar bei der Recherche wenig im Internet gefunden. „Und über Geld wird ja eher nicht geredet“, ergänzt Matthias. Mit ihrem Instakanal „baukosten_details“ möchte Marlen Bauwilligen Anhaltspunkte an die Hand geben und einen Austausch ermöglichen. Ein Erfolg: Fast 14.000 Follower hat sie schon, denen sie mit ihren Erfahrungen hilft, um nach dem Hausbau zu demselben Fazit zu kommen, wie sie selbst: „Wir mussten keine Abstriche machen.“







