In die Höhe bauen
Bauland ist rar und entsprechend teuer. Möglichkeiten, um den Haustraum dennoch zu realisieren, bieten Nachverdichtung, Anbau oder – besonders im urbanen Raum – die Aufstockung von Bestandsgebäuden. Weil letzteres auch neu zu versiegelnde Fläche spart, ist es eine sehr nachhaltige Alternative bei der Schaffung von zusätzlichem Wohnraum.
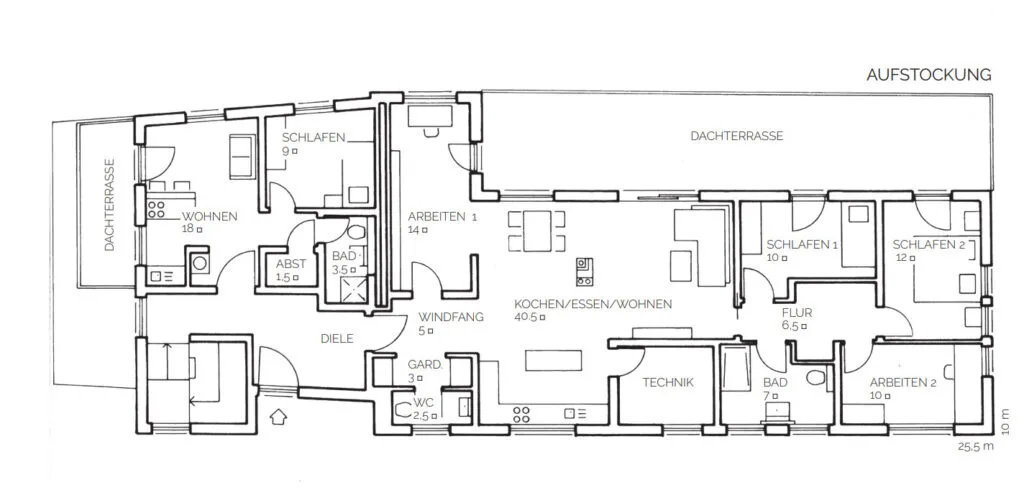
Als die notwendige Sanierung der Flachdächer ihres Wohnkomplexes, bestehend aus drei Reihenhäusern und einem angebauten Zweifamilienhaus, aus dem Jahr 1960 anstand, nutzten Mattias F. und seine Frau Maren J. die Gelegenheit zur grundlegenden baulichen Veränderung – und schufen sich ein neues Domizil auf dem Dach des Gebäudes. Dazu ließen sie dieses um ein weiteres Geschoss aufstocken: mit einer kleinen und einer großen Wohneinheit. Die große für sich, die kleinere Wohnung könnte später bei Bedarf von einer Pflegeperson genutzt werden.
„Wir wollten auf dem Dach zwei zusätzliche Wohneinheiten schaffen, ein helles, großzügiges Apartment auf einer Ebene für uns, und eine kleine Wohnung, die zunächst vermietet wird“, sagt Bauherr Mattias F.


Fotos: E. Wentorf/Schwörer Haus
Zukunftsfähig und nachhaltig
Mit Blick in die Zukunft hat das Paar seinen neuen Lebensraum insgesamt geplant und umgesetzt: So sollte die Wohnung unbedingt ausschließlich auf einer Ebene liegen, mit einem altersgerechten Bad mit bodengleicher Walk-in-Dusche ausgestattet sein und über einen vorbereiteten Aufzug verfügen, der ihnen irgendwann barrierefreies Wohnen ermöglichen wird. Da die baubehördlichen Auflagen erlaubten, zwei Drittel der früheren Dachfläche zu bebauen, entstand ein sogenanntes Staffelgeschoss mit insgesamt 170 Quadratmetern Wohnfläche für beide Wohnungen. Die Wohnung des Besitzer-Ehepaars umfasst 115 Quadratmeter. Dazu kommt durch den Versprung eine 40 Quadratmeter große Dachterrasse. Optisch lockert dieser außerdem das Gebäudeäußere auf und gliedert die Fassade. Energetisch wurde das Gebäude in Hamburg-Altona im Zuge der Sanierung auf den Effizienzhaus-Standard 55 gebracht.
Auf Empfehlung wandte sich das Bauherrenpaar an die Firma SchwörerHaus, die die Aufstockung inklusive des Innenausbaus übernehmen sollte. Denn für eine relativ kurze Bauzeit und aufgrund des geringen Gewichts bot sich die Umsetzung der Aufstockung als Holzbau mit vorgefertigten Dach- und Wandelementen an. Bei einem Termin am Firmensitz auf der Schwäbischen Alb überzeugte sich das Ehepaar selbst von der Bauqualität. Für die Umsetzung ihrer Baupläne wurde ein Architekt hinzugezogen: Olaf Peter ist Architekt in Hamburg und hat schon mehrfach mit Schwörer Haus zusammengearbeitet sowie mehrere Aufstockungsprojekte realisiert.
Passgenauer Raumgewinn
Die neue Wohnung sollte ein großzügiger Lebens- und Arbeitsraum für das Ehepaar werden. Vorbereitend für die notwendigen Baumaßnahmen wurden die alten Fundamente einer sorgfältigen Prüfung unterzogen und nachgerüstet, das Dach mithilfe einer Stahlkonstruktion und einer zusätzlichen Plattenlage tragfähig gemacht – quasi die Bodenplatte für das neu entstehende Geschoss geschaffen. Außerdem musste das Treppenhaus an die heutigen Vorgaben bezüglich Größe und Brandschutz angepasst werden, was bedeutete, dass es beinah komplett erneuert werden, vergrößert und nach vorne gezogen werden musste.
„Die alte Bausubstanz, das viel zu kleine Bestandstreppenhaus und die unterschiedlichen Gebäudehöhen sprachen nicht gerade für eine einfache, unkomplizierte und günstige Umsetzung. Aber das ist ja das Spannende an unserem Beruf, dass man immer wieder vor neue Herausforderungen gestellt wird und unbedingt passende Lösungen finden will“, erzählt Olaf Peter, freier Architekt in Hamburg.
Nachdem alle Arbeiten am Bestandsgebäude erledigt waren, konnte die Montage der vorgefertigten Holztafel-Elemente beginnen – und in nur drei Tagen war der Bau des neuen erweiternden Stockwerks, dank der Vorfertigung im Werk, auch schon geschafft.


„Für die Umbau- und Neubauphase war es wichtig, dass eine längere stabile trockene Wetterphase genutzt wurde, denn die Bewohner der anderen Reihenhäuser und eine Bewohnerin des Zweifamilienhauses wohnten weiterhin dort“, so der Architekt.
Auch für die Raumaufteilung hatte das Bauherrenpaar klare Vorstellungen: Gewünscht waren ein großer, offener Bereich zum Kochen, Essen und Wohnen, zwei großzügige, helle Arbeits- sowie zwei Schlafzimmer, dazu ein altersgerecht ausgestattetes Bad und daneben selbstverständlich die gängigen Nebenräume wie Garderobe, Gäste-WC und Hauswirtschaftsraum.

Klar war auch, dass alle ihre Möbel in das neue Domizil mit umziehen sollten. Diese Prämisse bildete die Grundlage für die Grundrissplanung, die auf die Abmessungen der Möbel ausgerichtet wurde. Alles fand in der neuen Wohnung seinen Platz – selbst an genügend Wandfläche für die vielen Bilder haben die Planer gedacht und im Flur und im Garderobenbereich sorgen heute passgenaue Einbauschränke aus der Schwörer-Designschreinerei für ausreichend Stauraum. Denn, ob Küche, Garderobe oder Einbauschrank: Die maßgeschneiderten Möbel können beim Haushersteller direkt mitbestellt werden.


Wohnglück über den Dächern von Hamburg
Mattias F. und Maren J. fühlen sich heute rundum wohl in ihren neuen vier Wänden. Beide arbeiten vorwiegend von zu Hause aus und genießen bei schönem Wetter ihre Pausen gerne gemeinsam auf der großzügigen Dachterrasse. Und selbst bei weniger gutem Wetter fällt durch die Panoramaverglasung ausreichend Licht hinein, sodass das Ehepaar den Ausblick ins Grüne genießen und von tageslichthellen Innenräumen profitieren kann.
Dachaufstockung in Holzfertigbauweise | SchwörerHaus


Geht nicht, gibt’s nicht
Anders als bei der Dachaufstockung in Hamburg, sahen sowohl der Bestand als auch das aufgesetzte Geschoss des Bauherren Mathias Hirt in Basel aus: Hier wurde das frühere Satteldach abgerissen und an dessen Stelle ein neues Geschoss in Holzfertigbauweise mit Schwörer Haus errichtet. So schuf der Immobilienentwickler ein modernes Refugium, das sowohl Arbeiten als auch Wohnen mit traumhafter Aussicht bis zu den Bergen ermöglicht. Dachaufstockung: Dachausbau mit Holzfertigbau mit SchwörerHaus


Fotos: J. Lippert/Schwörer Haus
10 Fakten zur Gebäude-Aufstockung
- Aufstockung bedeutet: ein bestehendes Gebäude wird um ein oder zwei Etagen nach oben erweitert.
- Bei einem Einfamilienhaus kann eine Aufstockung sinnvoll sein, um weitere Kinderzimmer, ein Home-Office, einen Wellness- oder Hobbybereich oder eine komplette zusätzliche Wohneinheit zu schaffen.
- Voraussetzung ist, dass die unteren Geschosse statisch in der Lage sind, die Lasten des darauf zu bauenden Geschosses aufzunehmen. Auch ein Fertighaus kann grundsätzlich aufgestockt werden.
- Da die Holzfertigbauweise relativ leicht ist, eignet sie sich besonders gut, um auf bestehende Gebäude noch ein zusätzliches Stockwerk draufzusetzen: sowohl in Modul-, als auch in Holzständerbauweise.
- Eine Aufstockung ist immer genehmigungspflichtig, man muss also in aller Regel einen Bauantrag stellen.
- Die Gebühren für den Bauantrag können unterschiedlich hoch sein.
- Auch baurechtliche Auflagen können bezüglich Landesbauordnung und Bebauungsplan unterschiedlich sein, das heißt, die maximale Gebäudehöhe oder Grundstücksausnutzung kann unterschiedlich festgelegt sein.
- Es ist sinnvoll, die bestehende Haustechnik an die neu zu installierende anzupassen – und ggf. aufzurüsten.
- Besonders für Bauherren, die ihre Immobilie ohnehin energetisch sanieren möchten, ist eine Aufstockung interessant: Statt nur das Dach zu erneuern, bietet eine weitere Etage obendrauf die Möglichkeit, dass sich die Baumaßnahmen durch Mieteinnahmen der Wohneinheit refinanzieren. Das funktioniert vor allem, wenn das Bestandsgebäude nur einen Besitzer hat. In jedem Fall stellt eine Aufstockung eine Wertsteigerung für das Gebäude dar.
- Wie jedes Bauvorhaben ist auch eine Aufstockung individuell und die Kosten hängen von verschiedenen Faktoren ab: der Größe, den Materialien und der Bauweise, eventuell notwendigen statischen Anpassungen sowie der vorhandenen Dachform. Vorteil bei der Fertigbauweise ist hier, dass Bauherren durch die Festpreisgarantie besser kalkulieren können und somit volle Kontrolle über die Kosten haben.
Leicht, ökologisch, flexibel – in Holzbauweise
Die relativ leichte Holzfertigbauweise eignet sich optimal dafür, auf bestehende Gebäude noch ein Stockwerk draufzusetzen. Dabei hat der Naturbaustoff Holz grundsätzlich den Vorteil, dass er nachwachsend ist und sogar schädliches CO2 bindet. Das macht ihn von vornherein zum klimafreundlichen Baustoff. Haushersteller wie Schwörer Haus setzen zudem auf nachhaltige Forstwirtschaft und haben das Thema Wohngesundheit im Blick. Die vorgefertigten Wand- und Deckenelemente werden auf der Baustelle nur noch montiert, was die reine Bauzeit vor Ort sehr kurz hält. Ein großer Vorteil, wenn, wie im Beispiel oben, Bewohner in den unteren Stockwerken bleiben – und man auf Gut-Wetter-Phasen angewiesen ist.



Fotos: J. Lippert/Schwörer Haus
Schnell, schneller, Wohnmodul draufsetzen
Eine besonders schnelle Variante, ein weiteres Geschoss auf ein vorhandenes Gebäude zu setzen und den Wohnraum dadurch zu erweitern, ist die Aufstockung in Modulbauweise. Dabei wird ein komplett fertiges Wohn-Modul wie das „Flying-Space“ von Schwörer Haus auf das Bestandsgebäude gesetzt. Auch diese vorgefertigten Module sind individuell gestaltbar, können also verschiedene Größen und Designs haben. Ihr Vorteil: Sie werden im Werk inklusive Innenausbau wie Bad und Küche komplett vorgefertigt und müssen dann auf der Baustelle nur noch montiert werden. Dadurch verkürzt sich die Bauzeit vor Ort nochmals.
Das sogenannte „Flying-Space“ von Schwörer Haus wird fix und fertig per Tieflader auf die Baustelle gebracht und per Kran beispielsweise auf das Dach der Bestandsimmobilie gehoben. Ein Profi-Montage-Team von Schwörer Haus schließt es dann noch fachgerecht an – und schon kann der innovative Zusatz-Wohnraum bezogen werden.
Happy End: Wohnen auf dem Dach
Auch Familie Berweiler beschloss, als sich Nachwuchs ankündigte, ihre Eigentumswohnung in der ersten Etage eines Zweifamilienhauses aus den 1960er-Jahren zu erweitern. Da es sich um einen Flachdachbau handelt, lag die Entscheidung für eine Dachaufstockung, also die Erweiterung nach oben, nahe.



Dach des Zweifamilienhauses zu hieven. Da sich dieses in einer dicht bebauten Siedlung in Stuttgart befindet, kein leichtes Unterfangen. Fotos: J. Lippert/Schwörer Haus
Zunächst liebäugeln die Bauleute damit, für die Ausführung einen Zimmereibetrieb zu beauftragen – der leichte Baustoff Holz ist sehr gut geeignet und umweltfreundlich zu bauen, ist außerdem ganz in ihrem Sinne. Doch ihr Architekt hält die Baustellenbedingungen mit extrem schmaler Zufahrt, noch dazu eine Sackgasse ohne Wendemöglichkeit, für ungeeignet. Da die Arbeit mit dem Zimmereibetrieb länger gedauert hätte, war die gegebene Parksituation und auch die für längere Zeit höhere Frequentierung des Treppenhauses nicht günstig für die unmittelbare Nachbarschaft.
Er recherchiert daher nach der Möglichkeit in Modulbauweise aufzustocken und stößt auf die „Flying-Spaces“ von Schwörer Haus. Doch auch das „Flying-Space“ muss per Tieflader angeliefert werden – die Zufahrtsproblematik bleibt. Ein Spezialunternehmen nimmt diese Herausforderung jedoch nach intensiver Prüfung schließlich an. Erfreulich auch die Aussichten, dass die Bauzeit durch die komplette Vorfertigung im Werk obendrein wesentlich kürzer ausfallen würde. Bis dahin scheint alles klar und überschaubar. Doch dann hakt es an allen Ecken und Enden.
Es folgen Berechnungen für die Statik mit dem Ergebnis, dass einige zusätzliche, nicht einkalkulierte Stahlträger eingezogen werden müssen. Und: Der Bauantrag wird abgelehnt. Das Gebäude würde zu hoch und zu groß für die Grundstücksfläche. Zum Glück kann in diesem Fall das Garagengrundstück dem Hausgrundstück zugeschlagen werden, damit das Verhältnis von Grundstücksfläche zu Aufstockungsfläche ins passende Verhältnis kommt. Die erneute Entscheidung der Behörde lässt neun Monate auf sich warten. Dann endlich gibt sie grünes Licht. Neuer Wohnraum durch Dachaufstockung | SchwörerHaus





Fotos: J. Lippert/Schwörer Haus
„Als sinnvoll erschien uns vor allem die Verlegung der Aufenthaltsräume, da hält man sich viel auf und eine neue Küche stand sowieso auf dem Plan“, erzählt Patrick Berweiler.
Den neuen Familientreffpunkt können die Berweilers heute umso mehr genießen: Besonders abends lässt es sich auf der Dachterrasse gemütlich grillen und dabei den Schiffen auf dem Max-Eyth-See zusehen. Manchmal lassen sie gedanklich noch ihren überstandenen „Bau-Krimi“ Revue passieren, der mit einem absoluten Happy End endete.
Entdecke weitere Inspirationen und folge uns auf Pinterest:







