Das perfekte Zuhause
Smartes Familienhaus im Stadtvillendesign
Endlich so wohnen, wie wir es wollen: Für Nicole und Daniel Meyer war schon lange klar, dass sie irgendwann das Projekt Hausbau angehen. Zwar lebte das Ehepaar mit den beiden Töchtern bereits im Eigentum, allerdings entsprach die Wohnung nicht ganz den Wohnvorstellungen der Familie. „Wir wollten einfach mehr Platz und mehr Lebensqualität haben“, erklärt Daniel Meyer. „Und natürlich auch für das Alter vorsorgen“, ergänzt Nicole Meyer. „Es sollte möglichst keine Hürden geben.“

Texte und Bilder: WeberHaus
Mit allen Sinnen erleben
Als Baupartner holten sich die Eheleute WeberHaus an ihre Seite. Aus gutem Grund: „WeberHaus ist für Qualität bekannt,“ erklärt Nicole Meyer. Charmant war natürlich auch die 18-Monate-Festpreis-Garantie und dass wir unser Fertighaus ganz individuell planen konnten.“ Als Inspirationsquelle für die Entwicklung eigener Wohnideen nutzte das Paar vor allem Kundenhausbesichtigungen von WeberHaus: Ein Rundgang durch fast fertige Häuser ist die perfekte Gelegenheit, Baumaterialien und Ausstattungsvarianten live zu erleben und mit anderen Baufamilien ins Gespräch zu kommen. „Wir haben fast alle Kundenhausbesichtigungen im Umkreis mitgenommen“, berichtet Daniel Meyer lächelnd. „Ich fand aber auch den Besuch der World of Living sehr inspirierend“, fügt Ehefrau Nicole hinzu. „Man kann in aller Ruhe die verschiedenen Ausstellungshäuser anschauen, Eindrücke sammeln und dabei herausfinden, was man will oder was man nicht will.“ Ihre Ideen und Vorstellungen haben Nicole und Daniel Meyer in einer Liste festgehalten. Um bei der Hausplanung nicht den Überblick zu verlieren, arbeitete das Paar dabei mit verschiedenen Farben: „Das was ganz nett wäre, haben wir gelb markiert, rot war dagegen absoluter Luxus. Damit sind wir zum ersten Planungsgespräch gegangen.“
Ausgezeichnetes Wohnklima
Ein wichtiger Punkt auf der Wunschliste für das neue Traumhaus war das Thema Wohngesundheit. „Eine gute Gesundheit ist Voraussetzung, um die zahlreichen Anforderungen in der Arbeit und im privaten Leben zu bewältigen“, erklärt Nicole Meyer. „Aus diesem Grund haben wir auf den Einsatz von Naturmaterialien und entsprechende Zertifizierungen geachtet.“ Die Basis für die hohe Raumluftqualität legt die Gebäudehülle ÖvoNatur Therm, die Standard in jedem WeberHaus ist. Sie besteht hauptsächlich aus dem nachwachsenden und ökologischen Baustoff Holz, der mit weiteren natürlichen Materialien kombiniert wird. Das gesündere Raumklima, das in einem WeberHaus herrscht, wird durch die Zertifizierungen dreier unterschiedlicher Institute belegt. Gleichzeitig sorgt die Gebäudehülle ÖvoNatur Therm für einen sehr geringen Energiebedarf. Im Winter hält der Wand- und Dachaufbau mit Holzfaserdämmung die Wärme im Innern, im Sommer bleibt es dagegen angenehm kühl.



Am Puls der Zeit
Von außen präsentiert sich das neue Zuhause von Familie Meyer als elegante Stadtvilla, die sich mit ihren geraden Linien und der strahlend weißen Fassade perfekt in das Neubaugebiet einfügt. Ins Auge fallen die schmalen, vertikalen Lichtbänder auf der Eingangsseite, die zwar Aus-, aber keine Einblicke gewähren. Zum Garten hin öffnet sich das Haus dagegen mit großzügigen, zum Teil raumhohen Verglasungen. Was man nur aus der Vogelperspektive sieht: Auf dem dunkel eingedeckten Zeltdach erstreckt sich eine große Photovoltaikanlage mit einer Leistung von 10 kWp. „Gerade im Sommer ist die PV-Anlage sehr effizient. Wir erzeugen selbst mit Stromspeicher im Keller noch mehr Strom, als wir brauchen“, freut sich Daniel Meyer. Der überschüssige Solarstrom wird gewinnbringend in das öffentliche Netz eingespeist. „Die Kosten für Energie sind dadurch sehr überschaubar.“ Begeistert sind die Eheleute auch vom Smart-Home-System WeberLogic 2.0. „Wir nutzen die Steuerung über unsere Smartphones. Es ist toll, von überall auf die Beleuchtung, die Luft-Wärmepumpe, die Raffstores etc. zugreifen zu können.“
Viele Lieblingsplätze
Bei der Innenausstattung legte das Paar Wert auf natürliche und nachhaltige Materialien. „Wir haben viel mit Holz und Stein gearbeitet“, berichtet Nicole Meyer. Kombiniert mit Glas entsteht ein luftiges, modernes Ambiente, das trotzdem Gemütlichkeit ausstrahlt. Empfangen werden die Bewohner und Besucher von einer hellen Diele, an die sich links eine Garderobe anschließt. „Wenn man hereinkommt, kann man hier gleich Jacken, Schuhe, Taschen und all das, was man täglich braucht, verstauen“, sagt Daniel Meyer. Vorbei an einem Gästezimmer, einem Gästebad mit Dusche und einer Speisekammer geht es in den weitläufigen Wohn-, Ess- und Kochbereich, der sich über eine gläserne Lofttür vom Eingangsbereich abtrennen lässt. „Die Tür soll den Raum nicht komplett verschließen, sondern einfach ein bisschen hervorheben“, so der Bauherr. „Zudem dient sie natürlich auch als Wind- und Schallschutz.“ Schon beim Betreten der Gemeinschaftsräume stellt sich dank der großzügigen Verglasungen ein beeindruckendes Raumgefühl ein, das durch die Geschosserhöhung noch verstärkt wird. Ein Highlight ist das Eck-Sitzfenster: Mit vielen kuscheligen Kissen bestückt, verspricht es gemütliche Stunden bei guter Musik oder einem spannenden Buch.
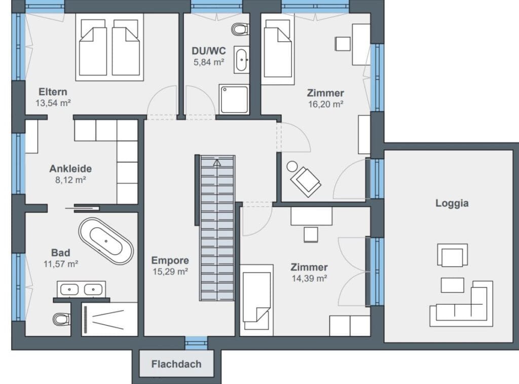
Unter dem Dach befinden sich die Ruhe- und Privaträume der Familie. Lieblingsplatz der Kinder sind natürlich die beiden hellen Kinderzimmer mit Zugang zur Loggia. „Die Große hat am Obergeschoss aktiv mitgestaltet. So waren zum Beispiel ein eigenes Bad mit Dusche und der Balkon ein Muss“, lacht Nicole Meyer. Den Eltern steht ein großes Schlafzimmer mit angrenzender Ankleide und Bad zur Verfügung.
Auf Erfahrung bauen
Vom ersten Spatenstich bis zum Einzug dauerte es rund ein Jahr. Im Dezember 2023 – kurz vor der Hausübergabe – öffneten Nicole und Daniel Meyer selbst ihre Türen für eine Kundenhausbesichtigung. „Vom Austausch mit anderen WeberHaus Kunden haben wir damals sehr profitiert, deshalb wollten wir unser neues Haus angehenden Baufamilien zeigen. Wir waren auch dazu bereit, unsere Kontaktdaten für Fragen weiterzugeben. Es ist einfach ein schönes miteinander“, erzählt Nicole Meyer. Für alle, die nicht bei der Besichtigung dabei sein konnten, gibt es gute Nachrichten: Im Video nimmt das sympathische Paar Bauinteressenten mit auf Erkundungstour durch sein Haus.
Gibt es etwas, was die Eheleute Baufamilien in Spe mit auf den Weg geben möchten? „Mein Tipp ist es, nicht zu eng zu kalkulieren“, so Nicole Meyer. „Und zu Kundenhausbesichtigungen zu gehen“, betont Ehemann Daniel. „Da kann man sich wirklich viele Ideen holen.“





Hausdetails Meyer Stadtvilla
- Bauweise: Holztafelbauweise
- Verwendung: Einfamilienhaus
- Dachform: Zeltdach
- Fassade: Putzfassade
- Fläche gesamt: 197,78 m2
- Preis: auf Anfrage
- Lieferradius: Deutschland, Schweiz, Luxemburg, Großbritannien
- Hersteller:
WeberHaus GmbH & Co. KG
Am Erlenpark 1
77866 Rheinau-Linx
Internet: www.weberhaus.de
E-mail: info@weberhaus.de
Entdecke weitere Inspirationen und folge uns auf Pinterest:













