Mit viel Spielraum
Familienleben ist schön, aber auch chaotisch. Und es verändert sich ständig. Kinder werden größer, Wünsche und Bedürfnisse ändern sich – und all das sollte euer künftiges Zuhause aushalten. Ob Rückzugsort, Platz zum Toben oder ein Zimmer für die Oma: Das Zauberwort heißt hier ganz klar Flexibilität. Schon bei der Planung solltet ihr darum die Zukunft im Blick haben – dann kann euer Familiendomizil dem steten Wandel langfristig gerecht werden.
Text: Christine Meier
Vorausschauend planen
Ein Einfamilienhaus für eine vierköpfige Familie hat in der Regel eine Wohnfläche von etwa 120 bis 150 Quadratmetern. Allerdings hängt die Größe eures künftigen Zuhauses von vielfältigen Faktoren ab – wie dem Standort, der Region, der Grundstücksgröße, ob ihr in die Höhe bauen könnt und wollt und natürlich eurem individuellen Bedarf. Weit entscheidender als die Quadratmeterzahl ist eine durchdachte, vorausschauende Planung. Denn gut geplant, kann auch auf relativ kleiner Fläche ein großzügiges Zuhause entstehen.

Familienhäuser sollten vor allem individuell und kreativ geplant sein und sich an den persönlichen Vorlieben orientieren. Denn jede Familie ist anders und hat unterschiedliche Anforderungen an ihr Zuhause. Nicht für jeden passen die üblichen Standards. Fragt euch am besten vorab: Wie wichtig ist euch ein riesiges Wohnzimmer? Vielleicht passt viel eher eine kuschelige Sofaecke mit Fernseher zu euren Gewohnheiten und dazu ein zusätzlicher Spielbereich? Vielleicht kocht Ihr gerne zusammen und esst alle gemeinsam am Tisch – dann sollte natürlich vor allem dort ausreichend Platz für alle sein. Oder ihr plant einen großen Spielflur, der später als Arbeitsplatz umgenutzt wird.
Am besten erstellt ihr eine Bedarfsliste, die ihr ganz ehrlich befüllt. Beachtet dabei, dass in jedem Fall variabel nutzbare Räume gefragt sind. Mit ihnen schafft ihr ein Zuhause, das euch über Jahrzehnte Freude bereitet.
Individuell & flexibel
Flexibel nutzbare Grundrisse, egal, wie sie im einzelnen Fall umgesetzt sind, sind ein allgemeingültiger Tipp. Im besten Fall klar strukturiert und doch anpassungsfähig. Denn es gibt natürlich auch Bedingungen, die quasi für jedes Haus gelten, um eine familientaugliche Wohnumgebung zu gestalten. Hierzu zählen möglichst gleich große, gut belichtete Räume für eine gerechte Kinderzimmerverteilung – und somit für ein harmonisches Miteinander. Außerdem Gemeinschaftsbereiche wie Wohn-Esszimmer oder Küche, Terrasse und Garten, die von allen genutzt werden können. Darüber hinaus sollte man unbedingt ausreichend Staufläche vorsehen. Wo es möglich ist, schafft ein zweites Duschbad auf lange Sicht Entspannung – wenn die Kinder zur Schule gehen und alle gleichzeitig morgens aus dem Haus müssen.

Auch ein Zusatzzimmer (mit Bad) im Erdgeschoss kann flexibel genutzt werden: als Gästezimmer oder Home-Office, für ein Au-Pair, als Hobby- oder Bügelraum. Später ermöglicht es dann Wohnen auf einer Ebene oder es wird zum Jugendzimmer umfunktioniert.
Alles im steten Wandel
Die Bedürfnisse einer Familie ändern sich ständig: Kleinkinder brauchen noch sehr intensive Betreuung und suchen auch die Nähe der Eltern, sodass sie gern und viel im Wohnzimmer spielen oder auch nachts das ein oder andere Mal bei den Eltern mit ins Bett kriechen. Das eigene Kinderzimmer kann also zuerst noch eine eher untergeordnete Rolle spielen. Ganz anders bei Teenagern. Sie wollen eher Abstand und Privatsphäre. Und auch das Bedürfnis der Eltern nach deutlicherer Trennung der Eltern- und Kinderbereiche kann dann spürbar werden: wenn der heranwachsende Nachwuchs spät nach Hause kommt oder mit Freunden laut Musik im Jugendzimmer hört, während man selbst im Home-Office noch zu arbeiten hat oder nach einem langen Tag gerne Ruhe hätte. Je älter die Kinder, umso wichtiger sind akustische Trennungen und individuelle Rückzugsorte. Ein Büro neben dem Kinderzimmer ist keine gute Lösung. Ein Arbeitszimmer, das später Jugendzimmer wird und vom Erd- ins Obergeschoss verlegt wird, schon.
Du siehst, der Wohnraum sollte auf diese sich ändernden Anforderungen reagieren und angepasst werden können, quasi mitwachsen. Am besten fragt man sich schon ganz am Anfang, beim Erstellen der Bedarfsanalyse: Was brauchen wir heute, wo sind später Nach- und Umrüstungen sinnvoll und wie können diese vorbereitet werden?
Nähe und Distanz: beides ist wichtig
Es geht also darum, dass ihr die (kommenden) Bedürfnisse aller Bewohner bedenkt. Denn klar, wo Familien leben, kommen unterschiedlichste Interessen und Anforderungen zusammen. Jedes Familienmitglied, ob groß oder klein, braucht sowohl individuellen Entfaltungsspielraum als auch große Familienbereiche für gemeinsame Familienzeit. Es gilt daher, eine gute Balance aus Rückzugsmöglichkeiten und Zusammensein zu finden.
Kinder wie Erwachsene brauchen Ruheinseln, Raum für sich. Kinder zum Toben, Basteln, Spielen, für Hausaufgaben und zum Ausruhen – Erwachsene zum Regenerieren oder auch für eigene Hobbies. Ein abgetrennter Elternbereich sowie separate Bäder sind daher sinnvoll. Während kleinere Kinder sich meist noch gerne ein Zimmer teilen, ist ab der Pubertät ein eigener Rückzugsraum mit mindestens 12 bis 15 Quadratmetern für jedes Kind zu empfehlen.


Raum für gemeinsame Familien-Zeit
Zentrum des Familiengeschehens ist in aller Regel der Wohn-Essbereich. Hier wird zusammen gegessen, man trifft sich zum Reden, Spielen oder auch zum Hausaufgaben machen. Praktisch ist hier eine offene Anbindung zur Küche, die gegebenenfalls flexibel durch eine Schiebetür abtrennbar ist. Denn ein offener Wohn-Ess-Kochbereich ist zwar sehr familienfreundlich, da man für die Kinder gut ansprechbar ist und diese im Wohnzimmer auch aus der Küche im Blick hat. Außerdem lässt er auch eine relativ kleine Grundfläche großzügig wirken. Dennoch sollte er wohl überlegt sein – gerade, wenn die Familie etwas größer ist.
Denn auch eine abgetrennte Küche hat Vorteile: Gerüche verteilen sich nicht im ganzen Haus und manchmal ist das Kochen ohne Fernsehgeräusche der anderen Familienmitglieder deutlich entspannter. Praktisch ist, wenn man Offenheit und Trennung flexibel handhaben kann – zum Beispiel mit einer Schiebetür zwischen Küche und Essplatz. Ist sie geöffnet, bleiben einerseits kleine Kinder auch von der Küche aus im Blickfeld und mit Gästen ist kochen und essen viel kommunikativer und bietet mehr Platz. Andererseits ist das dreckige Geschirr, dank geschlossener Schiebetür, vom Wohnbereich aus nicht einsehbar und man kann sich auch mal zurückziehen, wenn gewünscht.

Alltagstauglichkeit
Die Kunst besteht darin, die Raumaufteilung auf die täglichen Abläufe abzustimmen – zum Beispiel durch das Schaffen von kurzen Wegen und das Vermeiden von Engstellen: mit einer Speisekammer neben der Küche, dem Hauswirtschaftsraum neben dem Eingang und einer Ankleide oder dem Bad neben dem Schlafzimmer. Außerdem erleichtern pflegeleichte Materialien (unempfindliche Böden, abwischbare Wandfarbe und Tapete) oder gar ein praktischer Wäscheabwurf, der den Gang zur Waschmaschine mit schwerem Korb erspart, den trubeligen Familienalltag.
Um eine dauerhaft geordnete und wohnliche Atmosphäre zu schaffen, ist zudem ausreichend Stauraum extrem wichtig. Diesen vorzusehen gehört zur (Grundriss-)Planung und hängt von der Personenanzahl, der Lebenssituation, den Hobbies und Gewohnheiten der Bewohner ab. Um herauszufinden, ob ihr einen Keller braucht, ob der Hauswirtschaftsraum reicht oder ob er entsprechend größer ausfallen sollte, kann eure Bedarfsliste hilfreich sein.

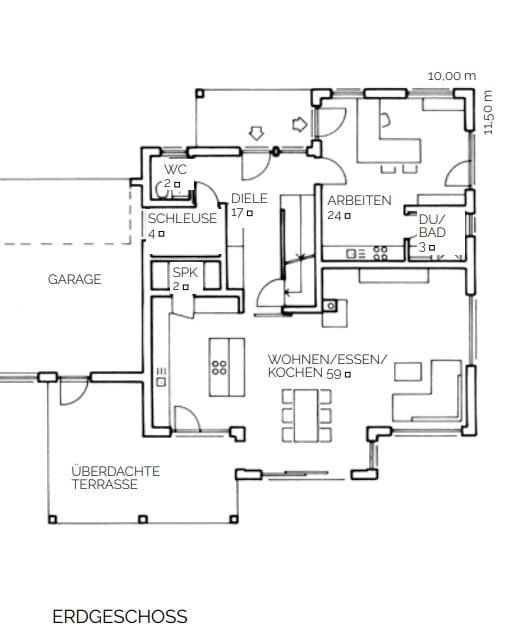
Eine gelungene Planung: Das Erdgeschoss mit großer Diele, ausreichend Platz für eine Garderobe, abgerückter Treppe vom Eingang, Zusatzzimmer mit Dusch-WC und Wohnbereich und Diele können per Schiebetür bei Bedarf separiert werden.
Im Obergeschoss sind Eltern- und Kindertrakt ganz klar voneinander durch Flur und Treppe getrennt. Die Kinder verfügen über ein eigenes Bad, das mittig der geräumigen Kinderzimmer liegt und nur durch diese zugänglich ist.

Ordnung hilft
Besonderes Augenmerk solltet ihr auf den Eingangsbereich legen. Er wird oft vernachlässigt, spielt fürs Wohnen insgesamt aber eine entscheidende Rolle. Ganz wichtig für den Familienfrieden sind auch hier genug Abstellflächen und Stauraum für alle Dinge des
täglichen Bedarfs, damit Jacken, Schuhe, Taschen und Schirme nicht störend im Weg herumliegen oder gar zu Stolperfallen werden. Ihr braucht daher geräumige Garderoben, Einbauschränke und Kommoden, die Nischen gut ausnutzen, oder geschlossene Abstellflächen unter Treppen. Wenn alles seinen Platz hat, fällt Ordnung halten auch viel leichter und es entsteht direkt mehr Ruhe.

Wichtig ist auch, ausreichend Platz zwischen Haustür und Geschosstreppe einzuplanen, um bei Bedarf auch mit Kinderwagen oder schweren Einkäufen durch Flur und Diele bequem hindurch gehen zu können. Und wenn dann noch Platz für eine Sitzgelegenheit bleibt, wird das Schuhe anziehen – gerade von kleinen Kindern – zusätzlich erleichtert.
Wohlfühlen für lange Zeit
Insgesamt gilt es, bei der Gestaltung darauf zu achten, dass sie kind- und familiengerecht ist – und gleichzeitig euren persönlichen Geschmack trifft. Wenn ihr außerdem darauf bedacht seid, dass euer künftiges Zuhause lange wohnlich und behaglich bleibt, solltet ihr darauf achten, wohngesunde, natürliche und schadstoffarme Materialien und Baustoffe zu verwenden. Vor allem wenn eure Kinder noch klein sind: besonders bei unter Zweijährigen können Ausdünstungen aus neuen Möbeln, Wand- und Bodenbelägen zu Atemwegserkrankungen führen. Selbst auf Ungeborene können sie negativ wirken und das Immunsystem des Kindes beeinträchtigen, sie anfälliger für Infektionskrankheiten und Allergien machen.







