Trendsetter Flachdachhaus: Fingerhut Haus „Malhela“ verkörpert modernes Wohnen
Klare Formen, großzügige Räume und nachhaltige Bauweise: Flachdachhäuser liegen im Trend, weil sie ein modernes Lebensgefühl ausdrücken. Mit dem Hausmodell „Malhela“ zeigt Fingerhut Haus, wie sich Architektur, Funktion und Energieeffizienz zu einem ganzheitlichen Konzept verbinden – und wie sich dieser Stil im Alltag bewährt.

Texte und Titelbild: Fingerhut Haus
„Flachdachhäuser spiegeln den Wandel im Wohnverhalten wider“, erklärt Holger Linke, geschäftsführender Gesellschafter der Fingerhut Haus GmbH. „Viele Menschen wünschen sich ein Haus, das schlicht und modern ist, dabei aber flexibel bleibt, wenig Energie verbraucht und sich an veränderte Lebenssituationen anpassen kann. Das Flachdach bietet dafür die ideale Grundlage.“
Flachdach: Minimalistisches Design trifft Funktionalität
Ein Beispiel aus der Praxis verdeutlicht das Konzept: Eine vierköpfige Familie aus Luxemburg entschied sich für das Haus „Malhela“. Das Flachdach verleiht dem Objekt ein bauhausinspiriertes Erscheinungsbild mit klarer Linienführung. Das Haus fügt sich ideal in das Hanggrundstück ein und wurde mit einer weitläufigen Terrasse versehen, die einen idealen Ausblick bietet.
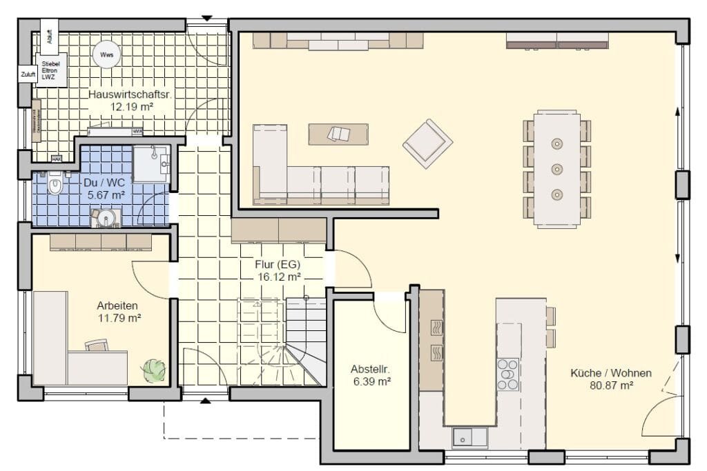
Zentraler Treffpunkt im Innern und Highlight des Erdgeschosses ist ein sehr großer, lichtdurchfluteter Wohn- und Essbereich mit offener Küche – realisiert auf 80,87 m². Zudem bietet diese Ebene Raum für ein abgetrenntes Büro, ein kleines Bad, einen Hauswirtschafts- und einen Abstellraum.
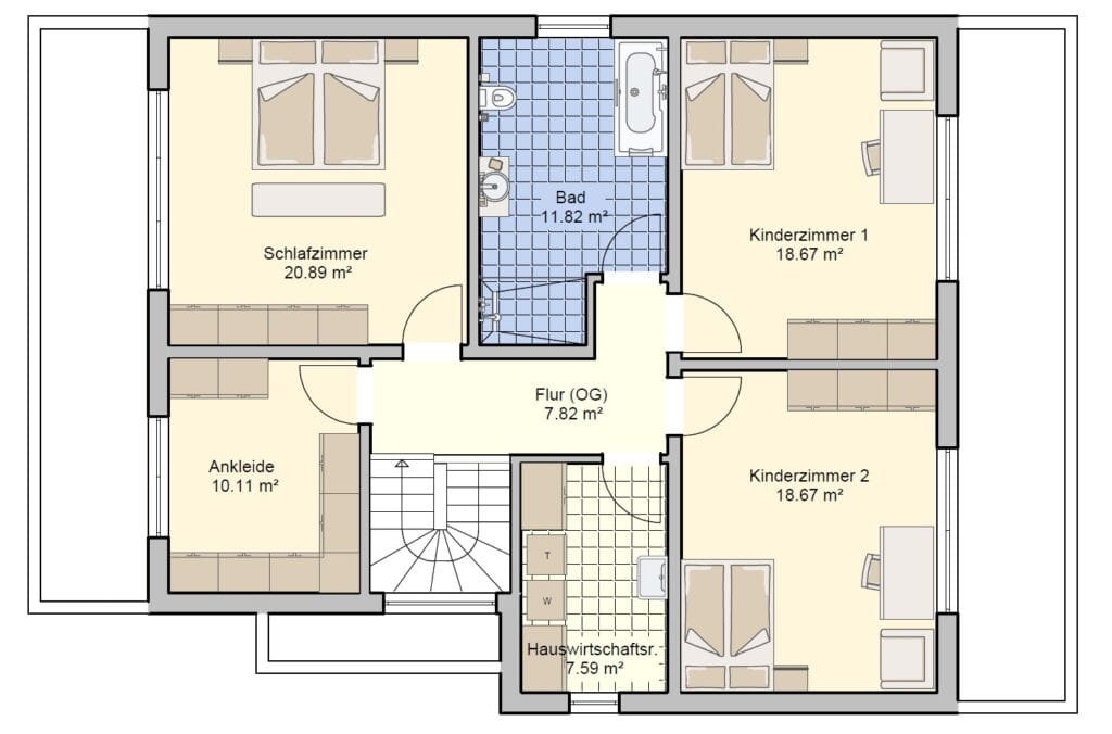
Dank des Flachdaches lassen sich auch die Räume im Obergeschoss optimal nutzen, ohne Dachschrägen, die die Raumhöhe einschränken würden. Zwei sehr große Kinderzimmer (jeweils knapp 20 m²), das Elternschlafzimmer, Ankleide und Bad, die im oberen Bereich liegen, profitieren von dieser Planung: Die Räume wirken größer, gleichmäßig proportioniert und lassen sich flexibel einrichten. Zudem hat hier ein zusätzlicher Hauswirtschaftsraum Platz. Die Raumausnutzung ist ideal gelungen.
Energieeffizienz und nachhaltiges Bauen mit ThermLiving
Auch die Energieeffizienz spielt eine zentrale Rolle. In Kombination mit dem Therm-Living-Konzept von Fingerhut Haus entsteht eine Gebäudehülle, die Wärmeverluste minimiert und zugleich ein angenehmes Raumklima schafft. Hochwertige Dämmstoffe, diffusionsoffene Holzweichfaser-Verbundsysteme und geprüfte heimische Hölzer bilden dabei die Grundlage.
Das Haus „Malhela“ ist die Antwort auf moderne Lebensstile, steigende Nachhaltigkeitsanforderungen und den Wunsch nach flexiblem, zukunftsfähigem Wohnen.
Grundrisse Fingerhut-Haus Malhela
Bildergalerie





Hausdetails
- Bauweise: Großwandelemente in Holztafelbauweise
- Verwendung: Einfamilienhaus
- Dachform: Flachdach
- Ausbaustufe: Ausbauhaus, Fast Fertig, Schlüsselfertig, Schlüsselfertig Plus
- Räume: 6
- Wohnfläche gesamt: 226,62 m2
- Preis: auf Anfrage
- Hersteller:
Fingerhut Haus GmbH & Co. KG
Hauptstraße 46
D-57520 Neunkhausen/WW. - Mehr Infos zum Haus














